Gorkijon 4. emeleti, 1+2 félszobás, erkélyes lakás eladó!

3244 Nyomtatás Ajánlás Facebook

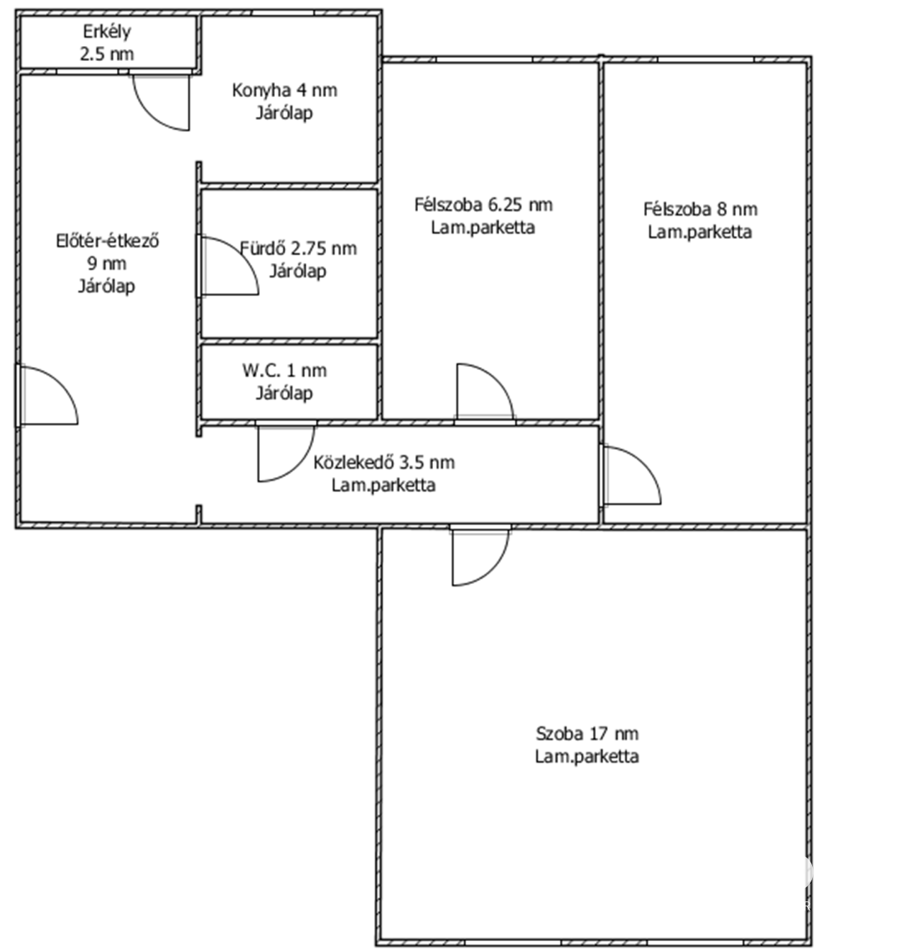
Salgótarjánban (Zagyvapálfalva) a Gorkij krt.-on, 56 nm-es, 4. emeleti, 1+2 félszobás, tehermentes, azonnal birtokba vehető lakás eladó!

Első lakást kereső fiataloknak, családoknak ideális választás lehet! A lokáció tökéletes!

Befektetésre is ajánlom, magas hozammal azonnal kiadható!

Helyiségei: 1 szoba, 2 félszoba, konyha, étkező/előtér, fürdőszoba, külön nyíló W.C., közlekedő, erkély.

A fűtést gázkonvektorok, a meleg víz ellátást átfolyós gázos vízmelegítő biztosítja.

A lakás kisebb esztétikai felújítást igényel. Festés és konyhabútor beszerzése után azonnal költözhető.

A városközpont 10 percen belül autóval elérhető, buszmegálló, TESCO, SPAR, posta, orvosi rendelő, gyógyszertár, óvoda, iskola, 100 méteren belül található.

Tatár Tamás
PRÉMIUM

Tatár Tamás

8 éve a Városi Ingatlaniroda tagja
Régióigazgató, ingatlanértékesítő
Salgótarján
+36 (70) 439 8123
Észrevétel a hirdetéssel kapcsolatban
Egy ingatlanos naplója