Impozáns üzlethelyiség szeged belvárosában.

5672 Nyomtatás Ajánlás Facebook

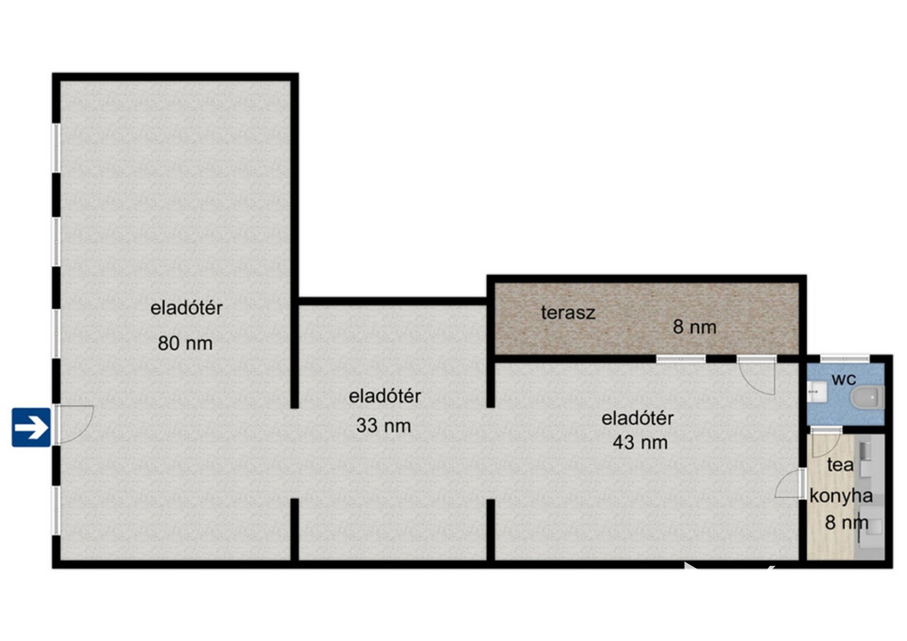
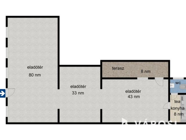
Szeged belvárosában a Feketesas utcán, utcafrontos, kirakatos, 155 nm-es impozáns üzlethelyiség TULAJDON JOGA eladó.
Paraméterek:
- 155 nm hasznos alapterület.
- Egyedi gázfűtés radiátorokon keresztül.
- Az üzletben központi klímarendszer működik.
- Az ingatlan mind esztétikailag mind funkcionálisan fel lett újítva.
- Teljes területén tetszetős hideg burkolattal fedték le.
- Villanyhálózatot teljes mértékben felújították 3X40 A.
- Külső nyílászárók modern hang és hőszigeteltek, kirakatkánt is remekül használhatók.
- Belső nyílászárok is cserélve lettek.
- Kamera rendszer, riasztó, füstjelző berendezés vigyáz az értékeinkre.
- Kialakításra került egy szép irodai konyha rész és toalett is.
- Az ingatlan tehermentes, azonnal birtokba vehető.
- A feltüntetett vételér az Áfá-t NEM tartalmazza !!!

Földszinti, utcai bejáratos, kirakattal rendelkező, frekventált helyen megtalálható modern szép ingatlanról beszélünk.
Alkalmas lehet akár üzlethelyiségnek, irodának, szolgáltató egységnek, szinte bármely követelménynek megfelelő lehet.

Bármely kérdés felmerül önben az ingatlannal kapcsolatban, keressen bátran, engem nem tud zavarni!
KUN SZABÓ ZOLTÁN Tel:06 20 9358828
Dél-Magyarországi Régióigazgató.

Kun-Szabó Zoltán
PRÉMIUM

Kun-Szabó Zoltán

11 éve a Városi Ingatlaniroda tagja
Régióigazgató, ingatlanértékesítő
Szeged
+36 (20) 935 8828
Észrevétel a hirdetéssel kapcsolatban
Egy ingatlanos naplója