Szuper elhelyezkedés, remek kialakítással

17890 Nyomtatás Ajánlás Facebook

ELADÓ ÚJ ÉPÍTÉSŰ, TÉGLA CSALÁDI HÁZ KORONCÓN.
Álmodja meg otthonát Győrtől egy karnyújtásnyira, a 10 km-re elhelyezkedő, csendes, jó fekvésű falusias lakóövezetben.

Minimalizálja a rezsit hőszivattyúval, a hőszivattyú a jelenleg elérhető legkorszerűbb fűtési rendszer.
H tarifás mérővel kerül kialakításra.
Napelemmel kombinálva 0 Ft-ra is kihozható a rezsi! /napelem előkészítéssel/
A telek összközműves, igény szerint gázkazánnal is kialakítható a fűtés.

Minőségi anyagokból, megbízható kivitelezőtől! A hőszivattyúnál is ragaszkodnak a prémium minőséghez!

A HÁZ emeltszintű fűtéskész állapotban kerül átadásra.
Az ár tartalmazza a telek árát és a murvás utat is.

Amit kínálunk:
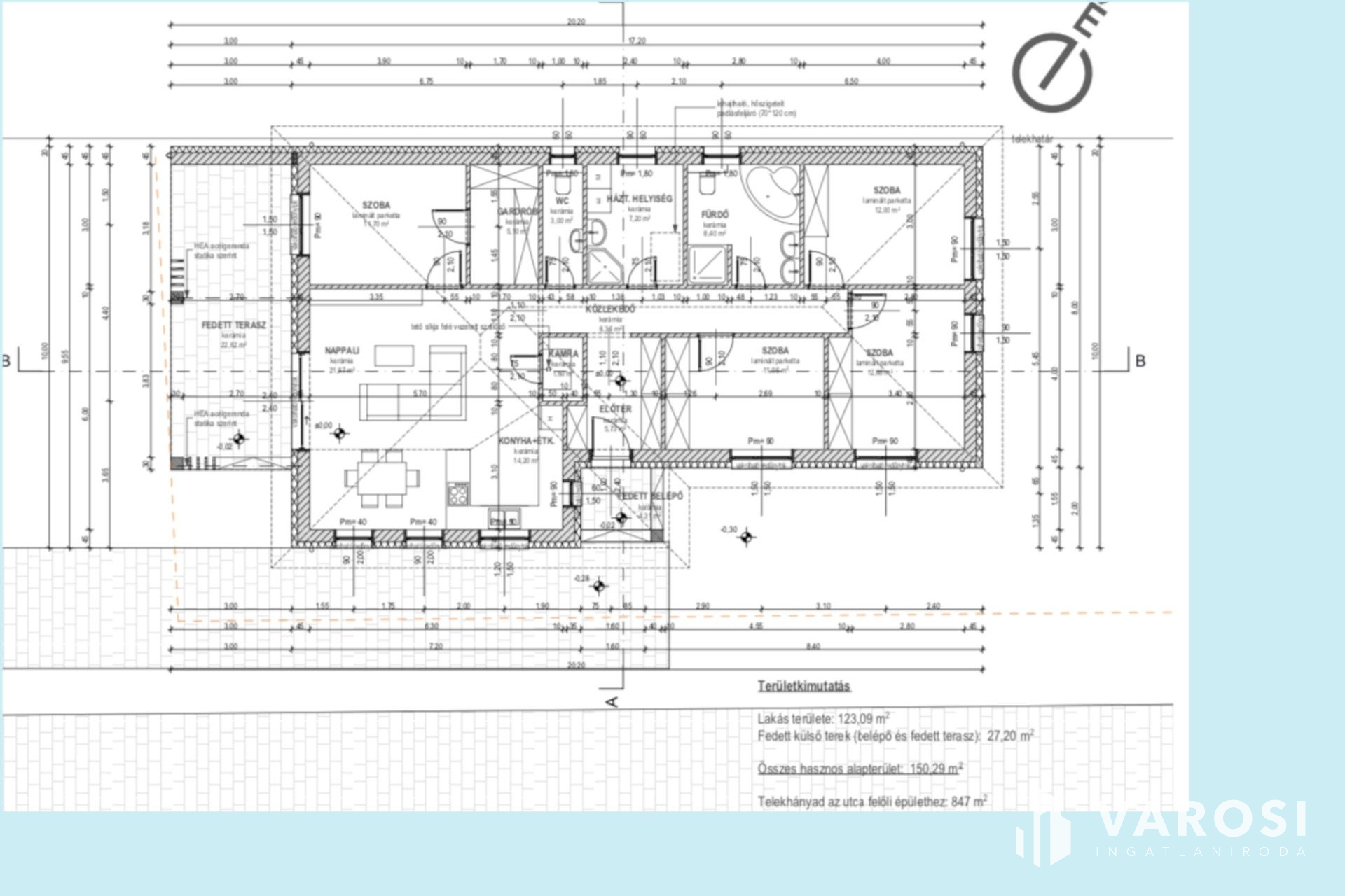
- 847 m2 telken elhelyezkedő, hőszivattyúval felszerelt, emeltszintű FŰTÉSKÉSZ, ÖNÁLLÓ CSALÁDI HÁZ.
- 125 m2 alapterületen, tágas előszoba, közlekedő, AMERIKAI KONYHÁS NAPPALI, kamra, + 4 HÁLÓSZOBA, gardrób,
háztartási helyiség, fürdő - wc, és még külön is egy wc.
- 4,31 m2 fedett belépő
- 22,62 m2 fedett terasz az árban, ezenkívül autóbeálló lehetőség.

- A telek felosztását tartalmazó használati megosztással!

A ház tervezése során a tágas terekre és élhetőségre törekedtek, valamint hogy modern, de otthonos legyen. Az alap helyiségeken kívül kialakításra kerül gardróbszoba és háztartási helyiség.
A telken fúrt kút is található és számos gyümölcsfa, mint szilva, barack, füge.

Jó közlekedés, sűrű autóbuszjárat, a faluban működik iskola, óvoda, élelmiszerboltok,
posta minden ami a hétköznapi élethez szükséges.
Az M83-as gyorsforgalmi út 2023-ban elkészült, így a térség kistelepülései könnyen megközelíthetőek.
A menetidő így jelentősen lecsökken.
Koroncó felkapott, fiatal családok is szívesen választják otthonteremtés céljából.

Műszaki tartalom az új energetikai elvárásoknak megfelelően:
- Porotherm 30 N+F tégla falak, Porotherm 10 N+F válaszfalak
- Cserépfedés: Terrán Synus barna színben
- Műanyag ablakok, beépített redőny
- 15 cm-es Austrotherm AT-H80 homlokzati hőszigetelés
- Fa födém, 30cm Ursa tekercses üveggyapot szigeteléssel
- Fűtése: hőszivattyú padló-, falfűtéssel és hűtéssel
- napelem előkészítéssel

Bővebb információért és műszaki paraméterekért hívjon bizalommal! 06-30-7830075

A FŰTÉSKÉSZ ÁR : 97 900 000 Ft
/AZ ÁR MEGEGYEZIK A BERUHÁZÓI ÁRRAL!/

Ragadja meg az alkalmat és hívjon, akár hétvégén is!

Ügyfeleimnek az adásvétel teljes körű lebonyolítását vállalom, ügyvédi szolgáltatással és díjmentes, bankfüggetlen CSOK Plusz és hitelügyintézéssel.
A jelen hirdetésben rögzített, az ingatlannal kapcsolatos adatok, információk a Megbízó tájékoztatása alapján kerültek meghatározásra.
Keressen bizalommal!

Velki Nagy Viktória

Velki Nagy Viktória

5 éve a Városi Ingatlaniroda tagja
Ingatlanértékesítő, hiteltanácsadó
Győr
+36 (30) 783 0075
Észrevétel a hirdetéssel kapcsolatban
Egy ingatlanos naplója